Prodej mezonetového bytu 3+kk s lodžií
Ve výhradním zastoupení majitele nabízíme ke koupi jedinečný mezonetový byt 3+kk o podlahové ploše 92,5 m². Nachází se v 6. a 7. nadzemním podlaží velmi dobře udržovaného činžovního domu s výtahem, který vede až do sklepního patra. Velkou výhodou domu je výborně fungující společenství vlastníků, které pracuje efektivně bez externí správcovské firmy. Díky tomu jsou provozní náklady domu dlouhodobě nižší a péče o budovu je na velmi dobré úrovni. Zděný zrekonstuovaný uzamykatelný sklep poskytuje praktický úložný prostor.
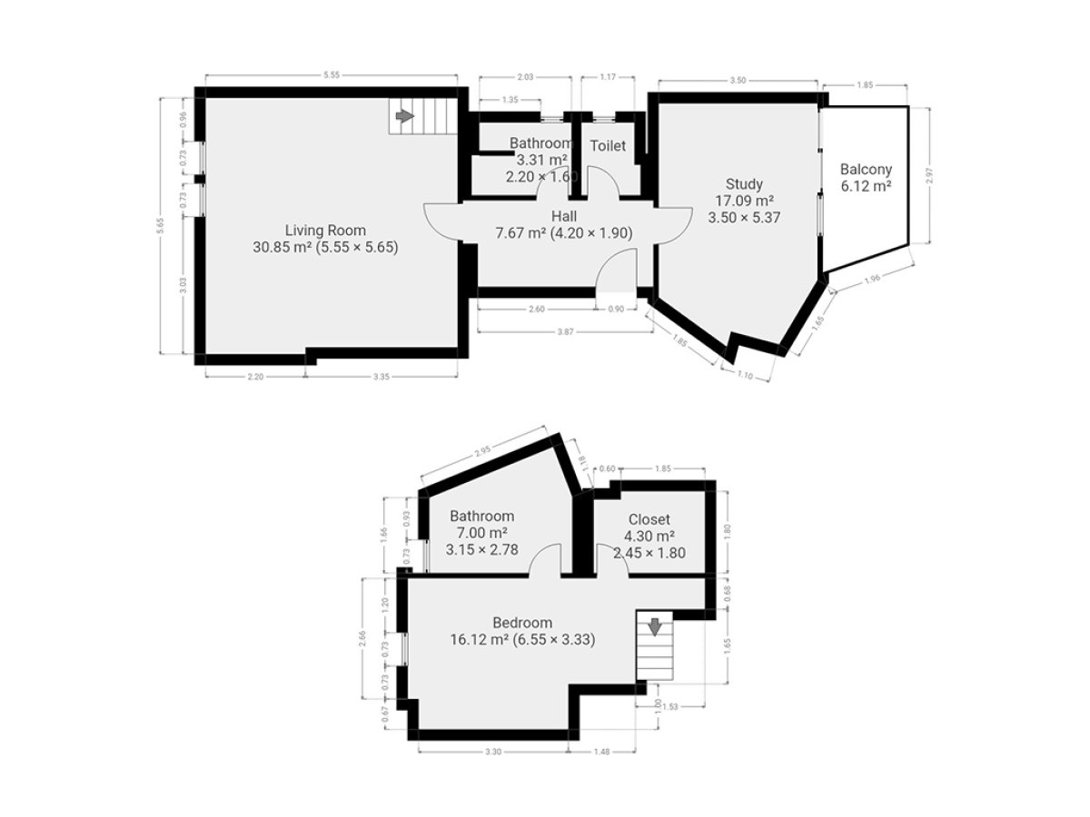
Dispozice bytu:
Celková výměra jednotky: 98,5 m2 (92,5 m² byt + 6 m2 lodžie)
1. podlaží:
Předsíň: 8 m²
Ložnice: 17 m²
Obývací pokoj s kuchyňským koutem: 33 m²
Koupelna: 4 m²
WC: 2 m²
Lodžie: 6 m²
2. podlaží:
Galerie/ložnice: 18 m²
Koupelna s WC: 6 m²
Šatna/komora: 4,5 m²
Vybavení:
Byt se prodává částečně vybavený. Součástí je nadstandardní kuchyňská linka se zabudovanými spotřebiči (indukční varná deska, elektrická trouba, mikrovlnná trouba, myčka, lednice a digestoř). V bytě dále zůstává mimo jiného jídelní stůl a židle, křeslo, rozkládací kožená sedačka, skříně, pracovní stůl, konferenční stolek, pračka, manželská postel a vestavěné úložné prvky na míru s integrovaným LED osvětlením. Centrální ovladač vytápění umožňuje pohodlné nastavení teploty z jednoho místa.
Lokalita:
Dům je situován vedle tramvajové zastávky Palouček, která zajišťuje perfektní dopravní dostupnost do centra města. Stanice metra Pražského povstání (C) je vzdálena pouze 2 minuty jízdy tramvají, stanice metra Karlovo náměstí (B) 10 minut. Za 10 minut pěšky se dostanete i na metro C Vyšehrad.
V blízkém okolí je veškerá občanská vybavenost – kavárny, restaurace, potraviny, školky, školy, dětská hřiště, fitness centrum, kadeřnictví, obchody a také oblíbené pražské parky Folimanka a Jezerka.
Byt je aktuálně pronajatý prověřeným nájemníkům, kteří zde žijí 2 roky. Mají platnou nájemní smlouvu na dobu určitou do 28.2. 2026, kterou by rádi prodloužili. Případně je možné byt uvolnit do 3 měsíců.
PENB není vyhotoven.
Ráda vás nemovitostí provedu osobně a zodpovím všechny vaše dotazy.
Tereza Lev
Certifikovaná realitní makléřka

Rádi s vámi probereme vaše požadavky a představíme vám kompletní nabídku volných jednotek.
Vydělávejte hned od 1. dne a bez starostí. Některé jednotky jsou již pronajímané.