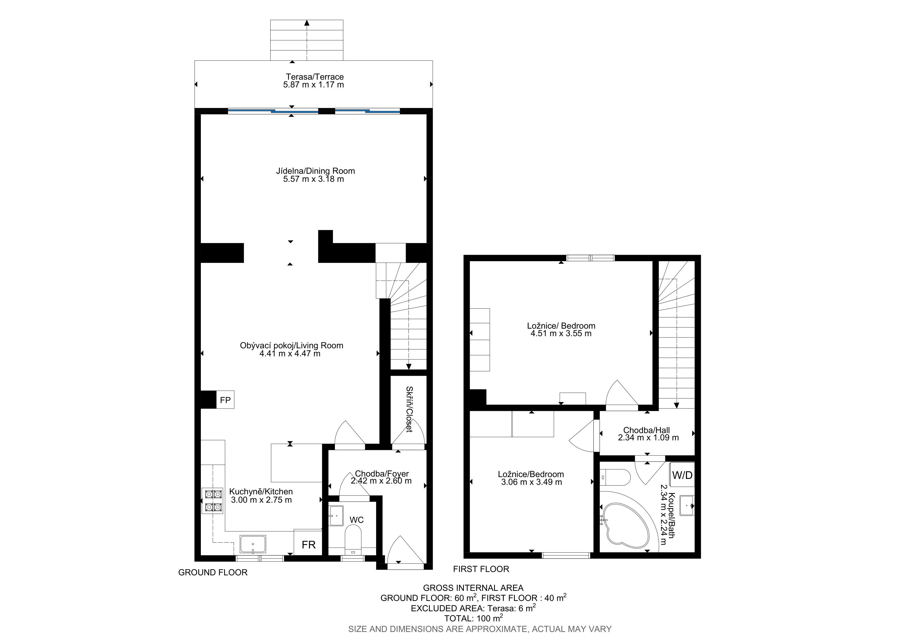
Nabízíme k prodeji velmi dobře udržovaný řadový rodinný dům o dispozici 3+kk s možností úpravy na plnohodnotné 4+kk. Celková užitná plocha domu činí cca 107 m² (včetně vedlejších a krytých ploch), čistá obytná plocha je přibližně 97 m². Dům se nachází v klidné ulici Na Vyhlídce v žádané lokalitě Moravany u Brna. Celková výměra pozemku činí 152 m², zastavěná plocha domu je 59 m².
Součástí pozemku jsou dvě parkovací stání, z nichž jedno je zastřešené. Na dvoře se nachází praktický zahradní domek na nářadí. Dům má dvě nadzemní podlaží a je napojen na všechny inženýrské sítě – voda, kanalizace, elektřina a plyn. Vytápění zajišťuje plynový kotel značky Baxi, doplněný o kvalitní krbová kamna značky HASE s akumulačními cihlami, které výrazně zvyšují tepelný komfort a energetickou úsporu.
V přízemí je umístěn kuchyňský kout s linkou osazenou spotřebiči značky Mora – elektrickou troubou, plynovou varnou deskou, digestoří a mikrovlnnou troubou. Lednice s mrazákem jsou značky Gorenje. Na kuchyňský kout navazuje obývací část s krbem, pohovkou, konferenčním stolkem, televizí a dalšími prvky vybavení. Dále plynule přecházíme do jídelní části s pohodlnými křesílky, odkud je přímý vstup na dvůr vhodný pro venkovní posezení a grilování. Mezi obývací a jídelní částí je konstrukčně připravena možnost vybudování příčky, čímž lze vytvořit další menší pokoj a změnit dispozici domu na 4+kk.
V patře se nachází hlavní ložnice s manželskou postelí a vestavěnými skříněmi. Druhý pokoj může sloužit jako dětský pokoj nebo pracovna. Koupelna je vybavena rohovou vanou, umyvadlem, přípojkou na pračku, sušičkou a druhou toaletou.
Dům se nachází v lokalitě s velmi dobrou dostupností do Brna a zároveň v klidném rezidenčním prostředí. V pěší vzdálenosti je základní i mateřská škola, obchody, dětská hřiště, restaurace a nákupní centrum Futurum je vzdálené pouhých pár minut jízdy autem.
Dům je aktuálně pronajat tříčlenné rodině na základě podnájemní smlouvy do 30. 9. 2025. Nový vlastník tak může převzít existující nájemní vztah a využít nemovitost jako investiční s okamžitým výnosem, nebo si ji po skončení smlouvy přizpůsobit k vlastnímu bydlení.
Současné měsíční zálohy na energie a služby (stav k 1. 6. 2025):
– Voda: 890 Kč
– Elektřina: 1 830 Kč
– Plyn: 1 470 Kč
Dle doloženého průkazu energetické náročnosti spadá nemovitost do třídy C – úsporná.

Rádi s vámi probereme vaše požadavky a představíme vám kompletní nabídku volných jednotek.
Vydělávejte hned od 1. dne a bez starostí. Některé jednotky jsou již pronajímané.